Galleri
Det mesta finns på min FB-profil (se kontakt för länk), men här är några bilder från totalrenoveringen av lägenheten.
Lägenheten
Sommaren 2006 blev det en totalrenovering av lägenheten i Björkhagen. Kök, hall och sovrum gjordes om helt och hållet medan vardagsrummet fräschades upp med nymålning. Med ett stort designintresse står jag själv för idéer och arkitektur. Själva renoveringen lade jag ut på diverse hantverkare. Hösten 2013 gjordes även badrummet om från scratch. Klicka på bilderna för större format!
(En bit ner visas bilderna hur det såg ut innan renoveringen.)

|
Välkommen!

Välkommen in! Hallen har fick en ny askparkett, liksom köket (till vänster). Skärmarna i taket blev inte bara annorlunda, de fungerade också bra för att dra igenom elgångar.
|
|
|

|
"Baren"

Mellan kök och vardagsrum gjorde jag en öppning med en bar som fungerar som en naturlig matplats för upp till sex personer.
|
|
|
Hallen och baren

Hallen och baren sett från vardagsrummet.
|
|

|
|
Vardagsrummet mot hallen

Hallen och baren igen, sett mer från mitten av vardagsrummet.
|
|

|
|
Vardagsrummet mot balkongen

Baren och balkongen sedda från vardagsrummet. Baren fungerar som ett extra fönster.
|
|

|
|

|
Vardagsrummet mot fönstren

Så här ser det ut när man ser på TV.
|
|
|

|
Vardagsrummet igen

Den här gången med lite utsikt.
|
|
|

|
Utsikt

Lite utsikt från ena vardagsrumsfönstret. Globen skymtas mellan husen.
|
|
|
Köket från hallen

Köket är helt utbytt, inklusive vitvaror och golv.
|
|

|
|
Köket från vardagsrummet sett igenom baren

Allt är ifrån Ikea (Faktum stomme, Tidaholm köksluckor och Whirlpool vitvaror).
|
|

|
|
Köket sett igenom baren igen

Spisen fick ny plats och gav mer yta för att laga mat.
|
|

|
|
Sovrummet

I sovrummet har det satts ny väggpanel och lagts nytt golv.
|
|

|
|
Plats för skrivbord

Rivning av en vägg - och uppbyggnad av en ny - gav ett större sovrum som i sin tur gav plats åt ett skrivbord.
|
|

|
|

|
Ytterdörren

Även ytterdörren är ny. Märket är Daloc som skryter med såväl bra ljudisolering som hög brand- och inbrottssäkerhet.
|
|
|
... och här följer en jämförelse mellan arkitekturen före och efter:

|
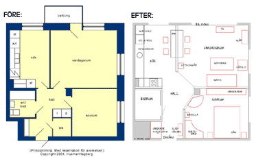
Före och efter

Planritningen från prospektet i januari 2004 ihop med planskissen jag gjorde själv vintern 2006.
|
|
|
... och så här såg det ut när jag flyttade in (klicka för större bilder):
Kök och vardagsrum

Så här såg det ut med dörrar och väggar i hallen innan renoveringen. Notera den blågrå plastmattan i köket och en liten fläck av den ljusgula i hallen.
|
|

|
|

|
Vardagsrummet

Så här såg vardagsrummet ut på visningen. Det blev snabbt en ommålning innan inflytt.
|
|
|
Köket

Köket såg ut så här precis före renoveringen, så när som på diskmaskinen som försvann redan innan inflytt.
|
|

|
|

|
Sovrummet

Sovrummet fick förbli intakt vid inflytten (jag skulle ju ändå göra om). Inte bara väggar och platsmatta är blåa utan till och med persiennerna! Notera också gärna den stiliga takboarden ...
|
|
|
|